Sede Nacional do CAU e IAB
A edificação parte da organização mais elementar do programa de necessidades. A setorização das entidades por pavimentos, tendo o piso cultural como convergência. A conexão vertical entre os três pavimentos define o acesso principal, no nível da do passeio frontal do terreno. O estacionamento e as áreas técnicas encontram-se no subsolo. O outro núcleo de circulação foi inserido na face oeste do edifício e é um acesso com maior controle, destinados aos funcionários e também aos visitantes que utilizam a garagem (subsolo).
A partir do acesso frontal é possível descer por uma rampa diretamente para o setor cultural, implantado ao longo do eixo esquerdo do lote. A distribuição desse setor no térreo (primeiro subsolo) possibilita uma adequada conexão com a cidade nos dois extremos do terreno. Também possibilitou a adequação do edifício à topografia, evitando assim grandes movimentações de terra.
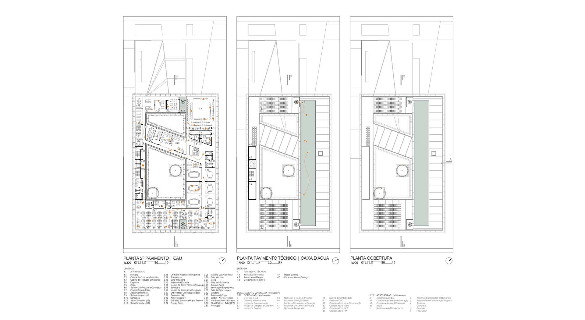
O IAB e o espaço corporativo foram implantados no 1º pavimento. A área corporativa possibilita tanto o aluguel para uma única entidade quanto a divisão em unidades menores, também estão previstos pontos hidráulicos para a instalação de áreas úmidas, aumentado assim a flexibilidade deste setor. O 2º pavimento é ocupado pelo CAU, e encontra-se a apenas um andar acima do nível da rua, otimizando a utilização dos elevadores.
A materialidade é definida por sistemas construtivos distintos, estrutura em concreto armado para o setor cultural e sistema de treliças metálicas para as áreas de escritórios. O auditório e salas multiuso são cobertos por um sistema de laje nervurada, possibilitando vãos adequados e inércia termo acústica. O sistema de treliças define panos de laje mista em steel deck, no piso e na cobertura. Estas lajes com forro acústico e piso elevado flexibilizam as instalações, possibilitando a passagem de sistemas hidráulicos, de climatização, elétricos e de lógica.
A cobertura possui além de equipamentos de climatização e placas solares, uma grande cobertura verde, que além de amenizar a incidência solar, poderá ser utilizada como terraço.
A vedação é feita em esquadrias de alumínio com sistemas de abertura máximo-ar, que possibilitam ventilação natural. O invólucro se caracteriza por elementos em madeira certificada são distribuídas de acordo com a incidência solar garantindo eficiência energética com climatização e iluminação.
Nome Sede Nacional do CAU e IAB
Cliente CAU e IAB
Local Brasília, DF
Ano 2016
Status Concurso
Área 7.500,00 m²
Equipe Fábio Domingos Batista, Igor Spanger, Luciano Suski, Moacir Zancopé Júnior, Suzanna de Geus, Karin Klassen, Simone Born e Rodolfo Scuiciato


