Delegacia da Receita Federal em Vitória
A nova Sede da Receita Federal do Brasil foi implantada em um terreno privilegiado próximo à área central e em frente à Baia de Vitória. A localização estratégica e a importância da instituição conferiram ao edifício uma posição de marco urbano na paisagem. Este foi o principal desafio do projeto: Pensar um edifício que iria se tornar um marco e ao mesmo tempo possuir uma materialidade sóbria e neutra, de modo a valorizar a paisagem urbana da capital capixaba.
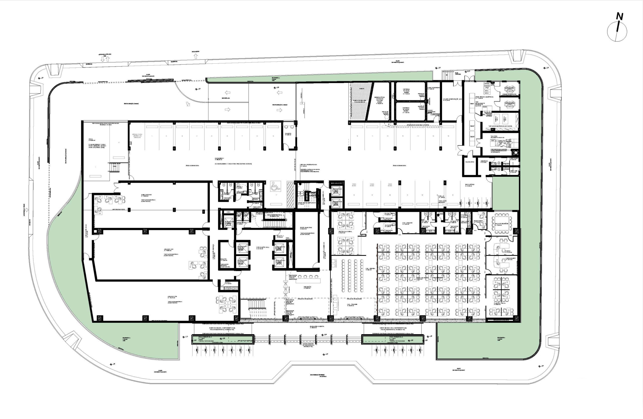
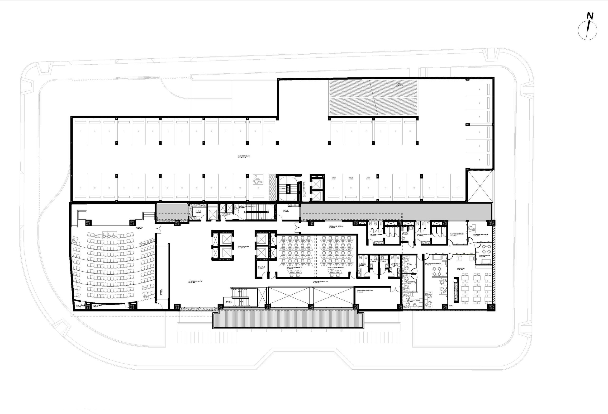
O edifício, disposto em dois blocos, abriga as atividades administrativas da Delegacia da Receita Federal do Brasil em Vitória e as áreas técnicas e vagas de estacionamentos necessárias para atender o código de obras municipal.
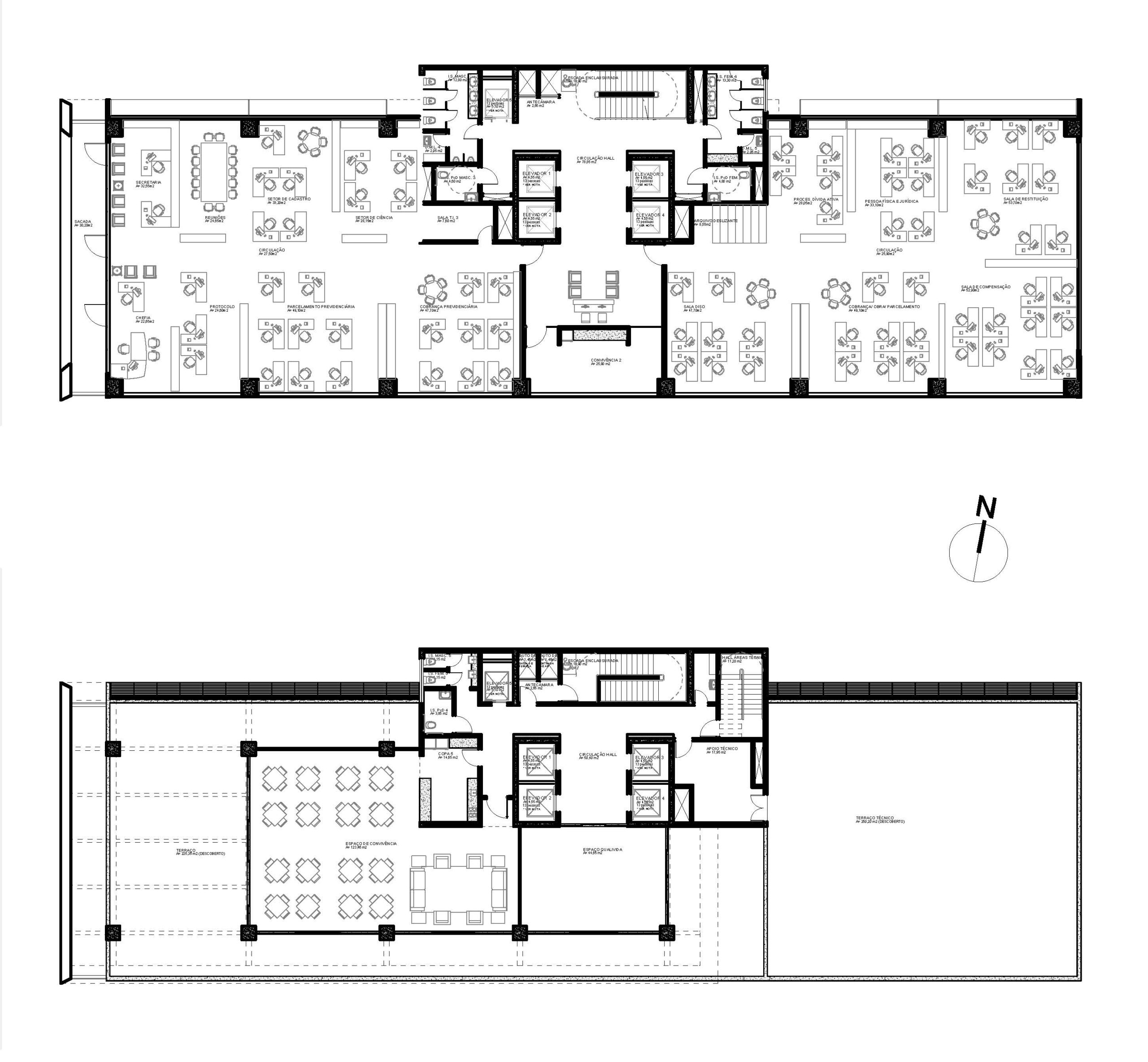
As atividades administrativas foram dispostas em 13 pavimentos, além do atendimento público aos usuários, auditório e área de eventos. O bloco destinado à garagem possui 7 pavimentos, devido ao grande número de vagas exigidas pela legislação local e também pela impossibilidade de utilização do subsolo.
Outro importante condicionante projetual foi a inserção da edificação de modo se adequar satisfatoriamente ao clima local, desta forma foram criadas barreiras na face oeste através de um fechamento em placa cimentícia permitindo a ventilação natural, mas impedindo a incidência direta do sol. Foram criados dispositivos de sombreamento também nas faces leste e norte, e na face sul, voltada para a baia, foi possível instalar um grande painel de vido de forma a aproveitar ao máximo a iluminação natural e também as belas visuais da paisagem natural da baia de Vitória.
Nome Delegacia da Receita Federal em Vitória
Cliente Receita Federal
Local Vitória, ES
Ano 2013
Status Em Construção
Área 18.760,70 m²
Equipe Fábio Domingos Batista, Igor Costa Spanger, Rafael Dal-Ri e Ana Mazzarotto


