POSTOS DE BOMBEIROS COMUNITÁRIO
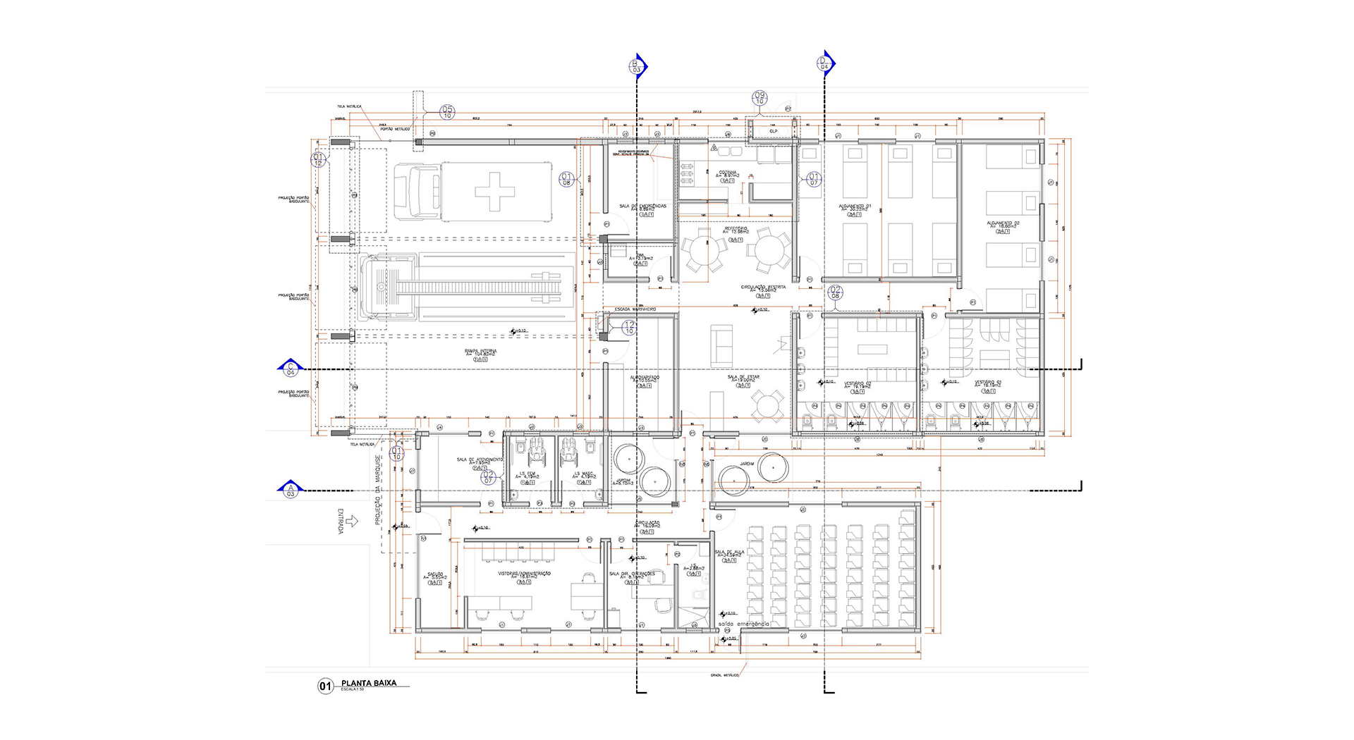
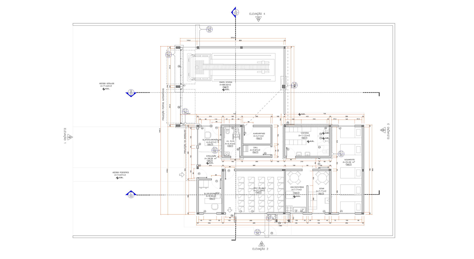
Este projeto foi premiado em concurso nacional promovido pelo governo do Paraná em 2007. Consistia na elaboração de 2 unidades padrão para os bombeiros a serem construídas em diversas cidades do Paraná. O modelo 1 (PBC1), menor, com 203 m² e o modelo 2 (PBC2) com 409 m².
O partido racional atende as necessidades do Estado em edificar o projeto em qualquer terreno, respeitando as diferenças das regiões do Paraná. Utilizando poucos tipos de elementos para a diminuição do custo, tanto o PBC1 quanto o PBC2 são térreos, com estrutura básica em concreto armado e fechamentos em alvenaria revestida ou pintura.
Pensado como uma estrutura flexível garante futuras ampliações e adequações. O PBC1 possui a capacidade de subdivisão dos alojamentos e vestiários, além de uma fácil ampliação para o PBC2. Nessa futura ampliação, destaque para a possibilidade de a obra não interferir nas atividades do corpo de bombeiros comunitário, fazendo com que o atendimento à população não seja prejudicado.
Os edifícios, concebidos em blocos, estão dispostos setorialmente, havendo uma eficiente divisão de fluxos, protegendo os alojamentos, vestiários e estar do acesso de público como também de qualquer poluição proveniente da rampa de veículos.
Nome Projeto de Arquitetura e Complementares para Construção de Postos de Bombeiros Comunitários no Paraná
Cliente SEDU – PR
Local Vários, PR
Ano 2007
Status Construído
Área 203 m² e 409 m²
Equipe Igor Costa Spanger, Leandro Coradin e Pedro Pereira Junior
Premiações Primeiro Lugar em Concurso Nacional de Projetos de Arquitetura

