Plano de Ocupação e Primeiro Edifício do Ágora Tech Park
A proposta para o Ágora Tech Parque visou equilibrar condicionantes locais com a urbanidade desejada, destacando a materialidade tecnológica. Buscou-se a configuração de um ambiente urbano conectado aos diversos usos expressos no programa de necessidades, materializado por um eixo integrador que, além de prover mobilidade entre as edificações, ordena e integra futuras ampliações, conferindo unidade ao conjunto.
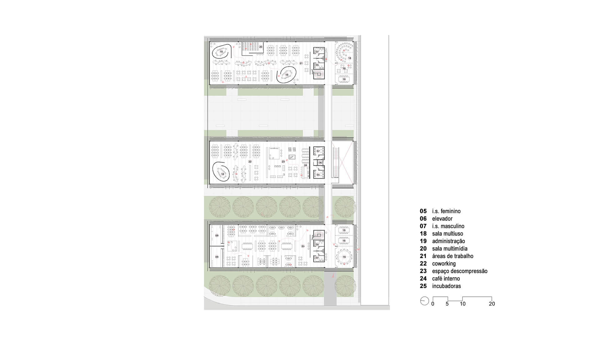
A urbanidade se manifesta na integração entre o terreno e o sistema viário existente, possibilitando uma fluidez de pedestres e veículos; no tratamento da massa verde existente, apropriada ao projeto como uma grande praça; na disposição e orientação dos edifícios; na relação entre áreas ocupadas e vazias; e nos eixos de integração.A tecnologia destaca-se, além do desenho urbano, nos processos construtivos e na materialidade dos edifícios. Na busca por uma solução construtiva simples, rápida e industrial, a estrutura em concreto pré-moldado se mostrou a melhor opção devido a velocidade construtiva aliada ao bom custo-benefício do sistema. Os painéis de fechamentos são em blocos pré-moldados revestidos externamente com cerâmica extrudada e sombreada por brises metálicos móveis, provendo adequado conforto térmico. A cobertura verde apresenta sistema modular, possibilitando baixa necessidade de manutenção.
A integração com a paisagem e a relação entre edifícios e elementos não arquitetônicos, resultou em um desenho racional e acolhedor, remetendo a um grande parque e negando a aridez e a falta de escala urbana, características muito comuns em condomínios industriais. A proposta utiliza o potencial paisagístico do bosque existente como ponto focal visual de forma a materializar um desenho adequado e equilibrado ao Plano de Ocupação.
Nome Ágora Tech Park
Cliente Join.Valle
Local Perini Business Park em Joinville
Ano 2018
Status Concurso
Área 50.000m²
Equipe Fábio Domingos Batista, Igor Costa Spanger, Luciano Suski, Moacir Zancopé Junior, Suzanna de Geus, Aline Proença Train, Rodolfo Luís Scuiciato, Eduardo Sinegaglia, Janaína Nichele
Premiações Menção Honrosa em Concurso Nacional de Projetos



 
							
													 
							
													 
							
													 
							
													 
							
													 
							
													 
							
													 
							
													 
							
													 
							
													 
							
													 
							
													 
							
													 
							
													 
							
													 
							
													 
							
													 
							
													 
							
													 
							
													 
							
													