Parques Central e Sul de Águas Claras – DF
Localizada entre o plano piloto e Taguatinga, Águas Claras foi projetada com o intuito de aproveitar o espaço vazio e agora contemplado com transporte de massa com a criação do metrô na capital federal. O eixo do metrô define o sistema viário da Região, e ao mesmo tempo que se caracteriza como importante eixo de transporte, acaba dividindo a cidade em duas, uma cicatriz ora em trincheira ora elevada. Outra importante característica é a acentuada verticalização dos edifícios residenciais, contrapondo com as demais áreas do distrito federal, onde a horizontalidade predomina.
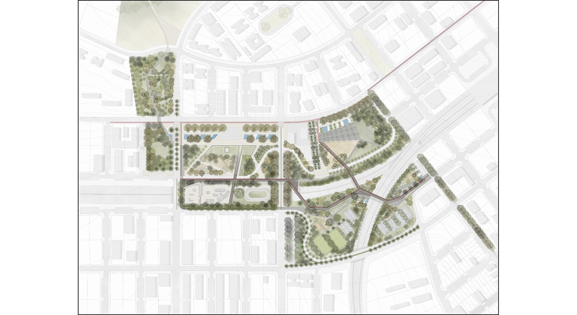
O rápido crescimento da região impossibilitou a consolidação de espaços verdes e de lazer significativos. A criação dos parques central e sul podem suprir esse desejo e criar uma integração com o Parque de Águas Claras.
O principal desafio desse projeto é uma correta integração entre as diversos lotes disponíveis para o parque. O parque central está constituído de 8 partes separadas por ruas e linhas de metrô. Um conjunto coeso e integrador não só é desejável como imprescindível. Partindo dessa premissa as barreiras hoje existentes foram superadas de forma a garantir a melhor integração possível dentro do orçamento disponível.
Para as travessias das linhas de metrô foram propostas passarelas elevadas, sempre com acesso universal. Para a travessia da Rua das Paineiras, a principal barreira viária do parque, propomos uma travessia em desnível, aproveitando a cota mais alta ao longo da Bulevar Norte. Com isso atravessa-se em nível entre o setor cívico e o setor esportivo, um percurso 100% acessível e sem interrupções. Nas outras travessias viárias foram propostas passagens em nível.
Essa passagem elevada é parte do grande eixo articulador do parque. Tal eixo se inicia na Av. Jacarandá, interligando ao parque sul e onde está o setor esportivo, se estendendo até o parque de Águas Claras, formando uma comunicação clara e fácil entre todos os setores do parque e formando um conjunto coeso entre o parque sul, parque central e parque Águas Claras.
Nome Parques Central e Sul de Águas Claras – DF
Cliente Governo do Distrito Federal
Local Águas Claras, DF
Ano 2017
Status Concurso
Área 186.000,00 m²
Equipe Fábio Domingos Batista, Igor Spanger, Luciano Suski, Moacir Zancopé Junior, Paulo Chiesa, Suzanna de Geus, Aline Train, Rodolfo Scuiciato, Janaína Nichele e Leozel Negrão


