03-Escada02
02-Maquete
01-aerea
05-Praça02
06-escada
04-praça-01FINAL-2
07-Corredor
08- Implantação
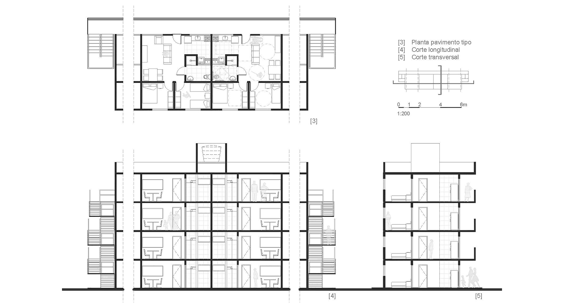
02 Plavimento Tipo
03 Planta
10-MPM_Planta e Cortes

 

Moradias Nova Primavera

 
Projeto de moradias populares adequadas ao programa Minha Casa Minha Vida Entidades.
O projeto foi contratado pelo Movimento Pela Moradia como solução ao projeto padrão de edifícios em cruz apresentado para a área. A proposta foi discutida e debatida com a comunidade que ocupa o local, desta forma o projeto também tem caráter de regularização fundiária.

A implantação do conjunto busca qualificar os espaços de uso comum, permitindo um melhor aproveitamento dessas áreas entre os blocos. As praças internas, formadas pela disposição dos edifícios compõe espaços de convivência e lazer, com recreações no térreo e varandas de acesso com áreas comuns.
A disposição do empreendimento em 5 setores busca manter a mesma divisão que existe na ocupação hoje.
O projeto tem função social definida, específica ao grupo ao qual se destina, tirando partido dos condicionantes que envolvem a concepção do projeto para promover hábitos aos futuros usuários do conjunto. É o caso da rua projetada que compõe a norma de diretrizes da prefeitura. Neste local, além do espaço destinado a passagem da via, foram implantados os centros comunitários dos empreendimentos e os espaços comerciais, definindo um caráter centralizador afim de gerar a integração dos moradores. Esta definição de projeto ainda insere o conjunto à cidade, mantendo-o ligado a estrutura urbana do entorno e aumentando a permeabilidade do empreendimento.
A topografia é um elemento condicionante para determinar a disposição dos edifícios. Neste caso foram elaborados métodos de locação dos blocos de modo a aproveitar ao máximo as possibilidades do terreno com seu relevo existente.
Privilegiou-se o uso de arborização abundante, melhorando a qualidade dos espaços externos por meio da criação de áreas sombreadas que geram microclimas, trazendo conforto térmico para os dias ensolarados. Além disso, a massa verde ameniza o barulho das áreas comuns, aumentando também o conforto acústico.
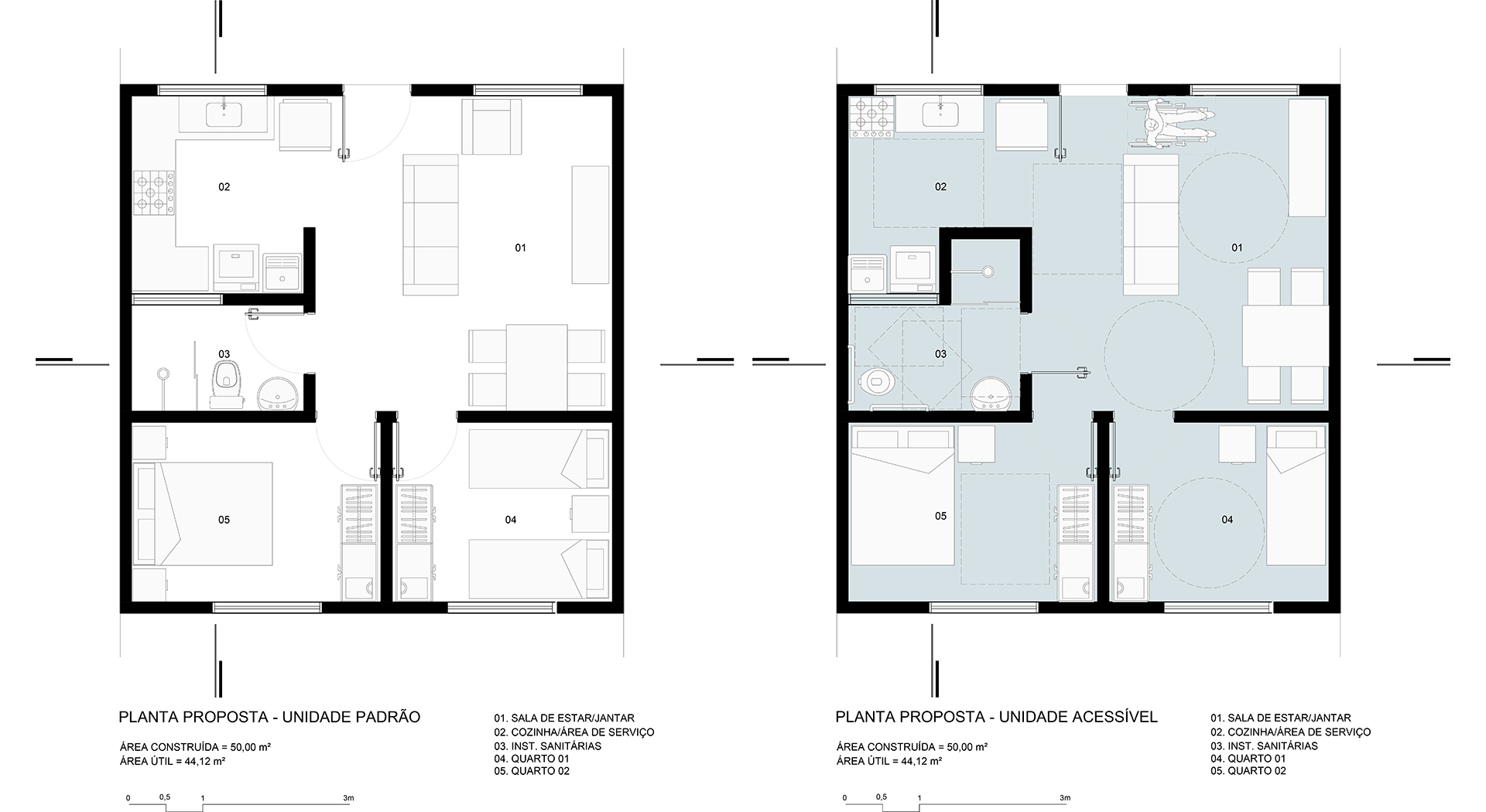
A maior racionalidade e eficiência da planta das unidades melhorou e otimizou o seu uso e o processo construtivo. O dimensionamento considera a utilização de blocos estruturais. A disposição dos ambientes possibilitou a simplificação e a modulação das lajes, contribuindo assim para a padronização e industrialização do método de execução.
As unidades habitacionais dispostas em edifícios laminares possuem aberturas em faces opostas dos edifícios, o que cria um fluxo cruzado de ventilação e aumenta as áreas de incidência de luz, fazendo com que as unidades sejam melhor iluminadas e ventiladas.
Em cada unidade a disposição do mobiliário exigido pela Caixa é feita de modo a atender as necessidades elementares determinadas pela legislação e aos critérios de acessibilidade disponibilizado em todas as unidades do empreendimento. Entretanto, a uniformidade do espaço permite uma flexibilidade que serve as diversas necessidades do usuário final.


Nome Moradias Nova Primavera


Cliente Movimento Popular por Moradia, Associação dos Moradores do Acampamento Esperança de um Novo Milênio, Coordenação da Ocupação Nova Primavera


Local Cidade Industrial, Curitiba/PR


Ano 2014


Status Projeto Básico


Área 23.643,00m²


Equipe Fábio Domingos Batista, Igor Costa Spanger, Luciano Suski, Moacir Zancopé Junior, Suzanna de Geus, Simone R. N. Born, Rodolfo Luís Scuiciato e Tiago de Mattos Chafik Hindi