Escola de Ensino Fundamental – Riacho Fundo
O projeto apresentado partiu desses condicionantes projetuais, destacando os seguintes temas:
· Materialização de uma arquitetura institucional simbólica;
· Integração com a comunidade;
· Disposição e organização espacial de acordo com o programa de necessidades;
· Boa iluminação, ventilação e adequada insolação, além da utilização de materiais e tecnologias que propiciem o adequado conforto térmico e economia de energia.
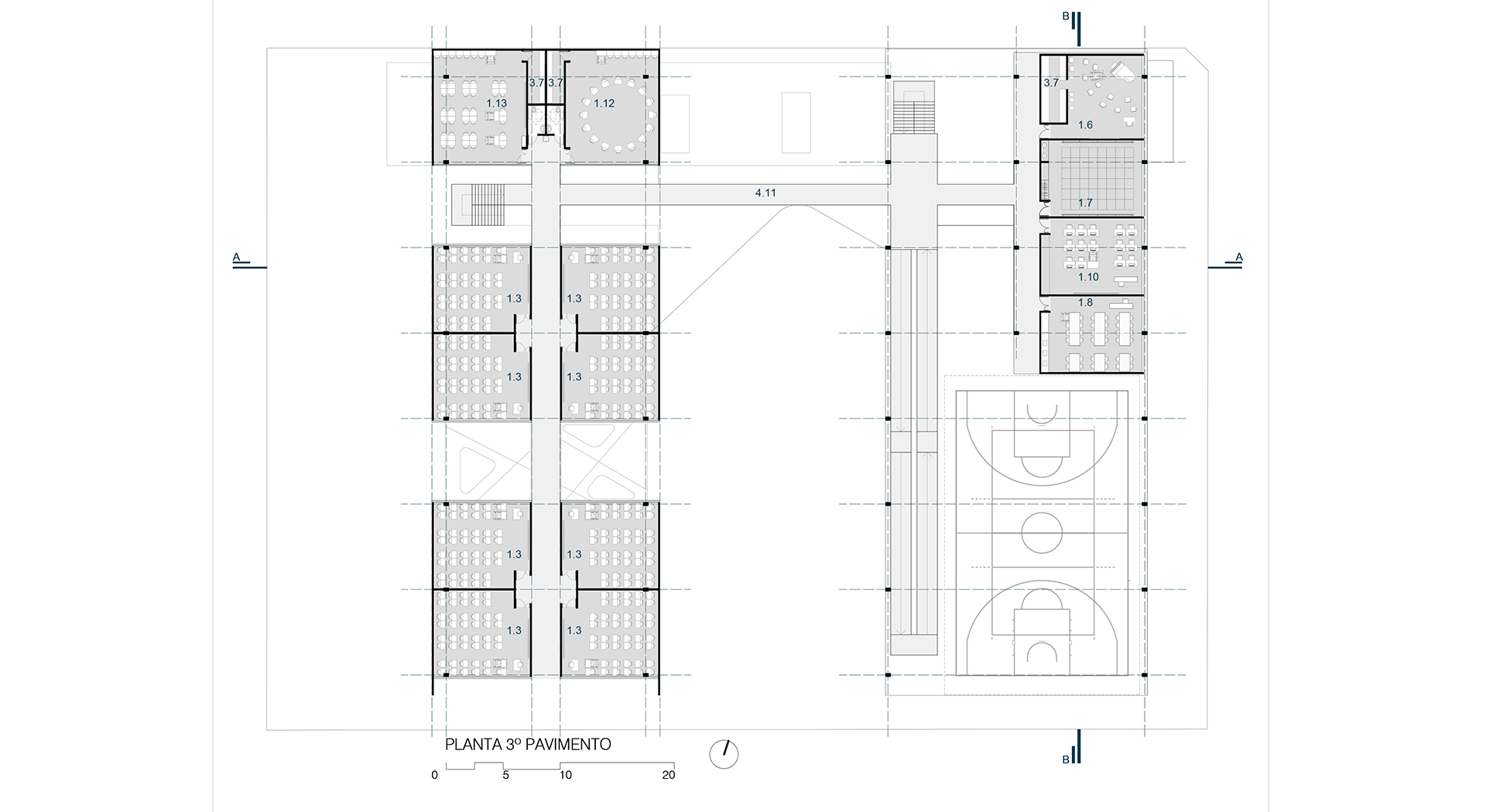
O edifício foi projetado em três blocos distintos interconectados onde foi adequadamente distribuído o programa de necessidades. Os três blocos abrigam as seguintes funções:
Bloco Comunitário: abriga a quadra coberta, teatro/auditório, biblioteca e salas de aprendizado cultural, como sala de música, sala cênica, sala de artes, além de sala de computação. Há a possibilidade do palco do auditório se abrir para a quadra, promovendo flexibilidade entre os equipamentos.
Bloco Administrativo: abriga as áreas administrativas, além de ser a recepção do público externo através da secretaria. Abriga também área de convivência de funcionários e professores. Propicia a conexão entre o Bloco didático e o Pedagógico.
Bloco Pedagógico: abriga a área pedagógica restrita à escola (não aberta ao público), como as salas de aula, laboratórios e demais salas didáticas. No pavimento térreo estão dispostos o refeitório, demais setores de serviços como vestiários para funcionários, cozinha e áreas técnicas.
Nome Escola de Ensino Fundamental Riacho Fundo
Cliente Governo do Distrito Federal
Local Brasília, DF
Ano 2016
Status Concurso
Área 4.050 m²
Equipe Moacir Zancopé Júnior, Fábio Domingos Batista, Igor Spanger, Luciano Suski, Suzanna de Geus, Karin Klassen, Simone Born e Rodolfo Scuiciato
Prêmios Menção honrosa em concurso nacional de arquitetura


