Edifício Residencial no Bairro Água Verde
A proposta consiste em um edifício inserido no bairro e na cidade.
O atendimento dos condicionantes não impossibilitou a materialização de uma edificação singular, para isso foi necessário sensibilidade e compreensão do local de implantação. Também foram propostas ações que melhoram a integração com o bairro e que oferecem gentilezas urbanas, como o recuo do alinhamento que ampliou o espaço público e criou uma pequena área de estar.
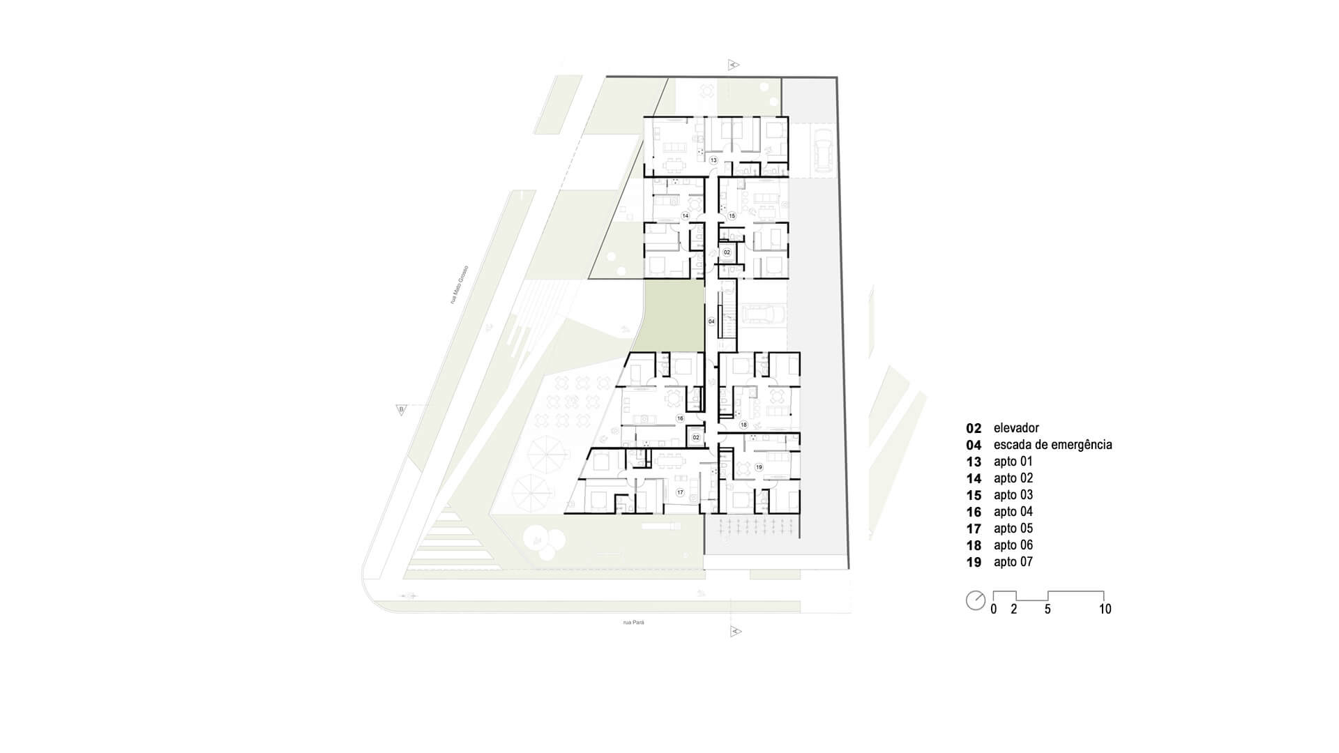
Da topografia surgiu a resposta ao subsolo, o qual aflora do terreno em seu ponto mais baixo, resultando no acesso em nível dos automóveis, além de oferecer privacidade aos 02 apartamentos “Gardens” que se localizam no ponto de maior privacidade. O térreo abriga a recepção, o salão de festas e 15 vagas de automóvel.
O edifício se dispõe sobre o terreno em duas torres conectadas pela escada de incêndio. O pavimento tipo conta com 07 apartamentos, sendo 03 com maior área e quatro menores. No sétimo pavimento, um apartamento com maior área se divide em dois, resultando em dois duplex que se utilizam do ático do edifício. Também no ático, foi proposta a extensão da área de lazer, com um salão de festas menor e uma academia.
Nome Edifício Residencial no Bairro Água Verde
Local Curitiba – PR
Ano 2019
Status Concurso
Área 5.100m²
Cliente Weefor
Equipe Fábio Domingos Batista, Igor Costa Spanger, Luciano Suski, Moacir Zancopé Junior, Suzanna de Geus, Aline Proença Train e Rodolfo Luís Scuiciato


