Edifício Lummi
Projetar um edifício que marcará a paisagem urbana de São José dos Pinhais é uma tarefa desafiadora e gratificante. O Edifício Lummi foi concebido com a diretriz principal de integração com a praça Montemor, adjacente ao terreno. Com linhas simples e esquadrias generosas, o Lummi se abre para a praça, promovendo uma forte relação com o entorno. O uso de materiais como concreto, vidro e madeira demonstra a preocupação em situar o edifício na arquitetura contemporânea e atemporal, apresentando um desenho puro que não necessita de adereços.
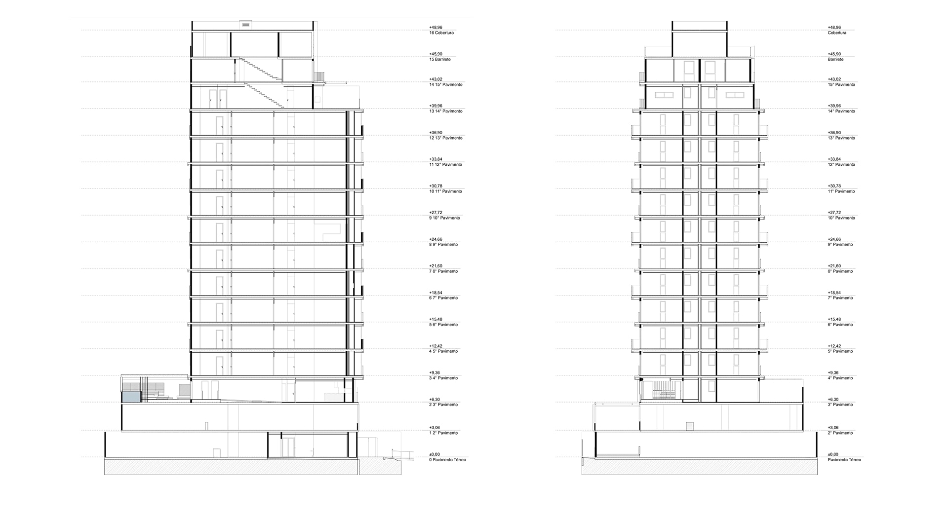
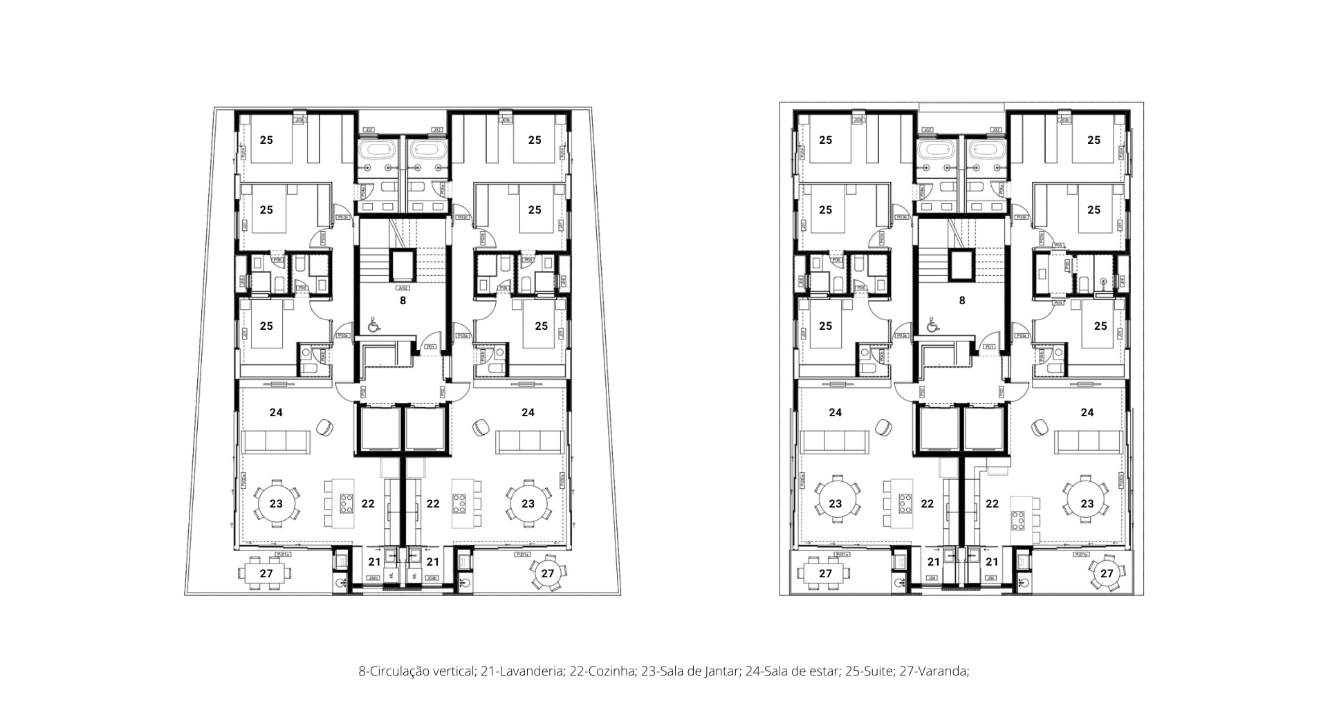
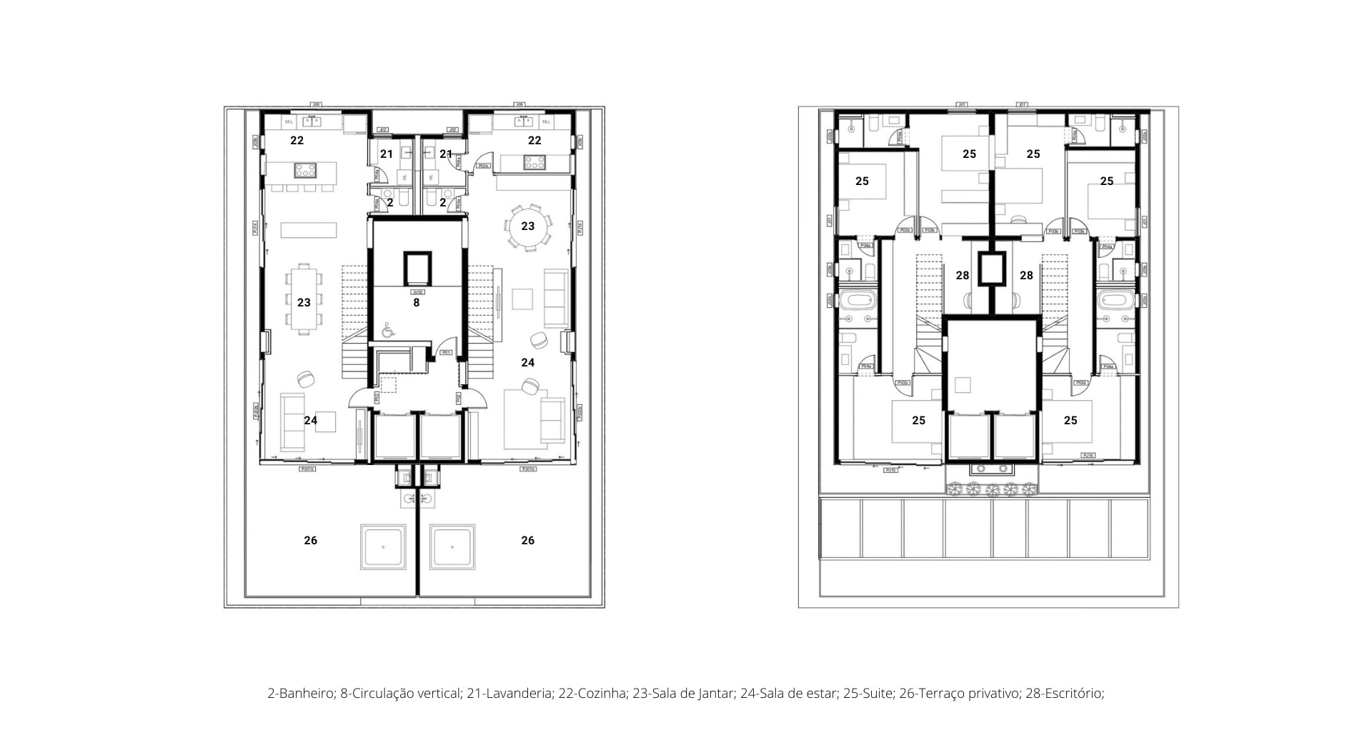
Descrito como um “imóvel arte”, o Edifício Lummi combina luz, arte e luxo em um só ponto. O Edificio de 16 pavimentos e 23 apartamentos, com áreas variando de 115 m² a 145 m², além de suítes com aproximadamente 260 m².
A fachada do edifício chama atenção pela presença do concreto, madeira e grandes panos de vidro. A pureza dos materiais e das formas é enfatizada pelo uso de poucos elementos e cores neutras. A modularidade escolhida cria um movimento que atrai o olhar, com andares pares e ímpares assumindo tamanhos diferentes devido à presença de terraços em cada dois pavimentos, variando de 8 a 30 m². Esses terraços são imponentes na paisagem, elegantes sem necessitar de enfeites e adornos.
As lajes inclinadas em diagonal, que marcam o meio do edifício, não são apenas estéticas, mas cumprem a função de permitir maior quantidade de luz natural nas áreas sociais e controlar a incidência solar nas áreas privativas, garantindo uma quantidade ideal de sol. Valorizamos o diálogo com o entorno, evitando grades e preservando os espaços fronteiriços entre o privado e o público, com um recuo frontal aberto que forma uma pequena praça em frente ao prédio. Esse senso de comunhão é reforçado pela presença de um café de rua aberto ao público.
A qualidade do espaço urbano importa muito pra nós. Conectar as pessoas e espaços.
A planta do Edifício Lummi é funcional, com espaços sociais como living, sala de jantar e cozinha integrados, permitindo diversas mudanças e personalizações dos espaços.
Nome Edifício Lummi
Local São José dos Pinhais – PR
Ano 2021
Status Em construção
Área 4.865,43 m²
Cliente ATR Incorporadora
Equipe Fábio Domingos Batista, Igor Costa Spanger, Luciano Suski, Suzanna de Geus, Ari Buhrer Machado Neto


